
“Starting at” Price is for the IRC Modular Lifestyle/Presidential Series Standard Specification Home.
Some options shown are not included in starting price. Options and upgrades are priced on an individual customer basis.
Starting price includes standard options provided by factory, transportation of home to Castle Rock, CO, placing and securing the home to the foundation, interior and exterior finish work that is supplied by factory.
All garages, porches, dormer, decks and custom exteriors are constructed on-site by others, not at the factory and not included in starting price.
Location of build, transport unknowns, delays, crane-set, weather, etc. can affect final price of home.
* MSRP pricing is for the base model and selected options only and does not include delivery, land, installation, sitework, foundation, connections to water, sewer, and gas, permitting, taxes, title fees, and site-built/installed items such as wells, septic tanks, drain fields, garages, porches, decks, grading, landscaping, concrete flat work and steps. Additional costs may also be incurred due to the need to achieve code compliance associated with energy efficiency, snow loads, and wind loads for your specific building location. All pricing and specifications are subject to change without notice. MSRP is valid for 14 days following your inquiry. Contact us for a complete price.
Home Details
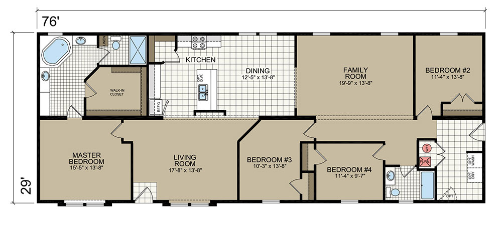
Bedrooms: 4 Bedrooms
Bathrooms: 2 Bathrooms
Builder: Champion / Atlantic











