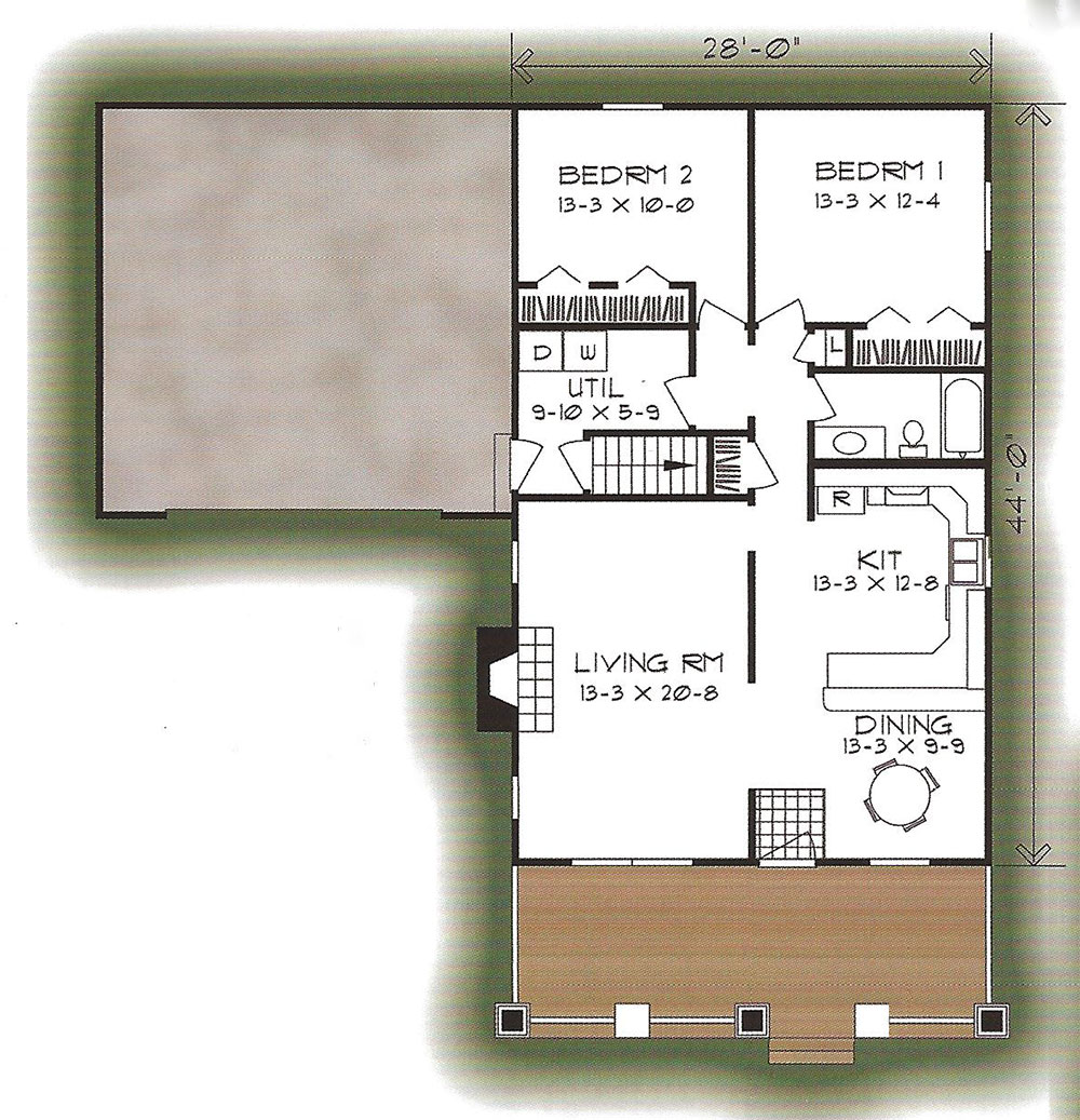
Home Details
Square Feet: 1,232
Bedrooms: 2 Bedrooms
Bathrooms: 1 Bathroom
Bedrooms: 2 Bedrooms
Bathrooms: 1 Bathroom
Style: Ranch
Builder: Other
Prices starting at*: $145,000
Builder: Other
Prices starting at*: $145,000
A faster, smarter way to build your home











