
Liscott Custom Homes custom designed – custom quote required.
Home Details
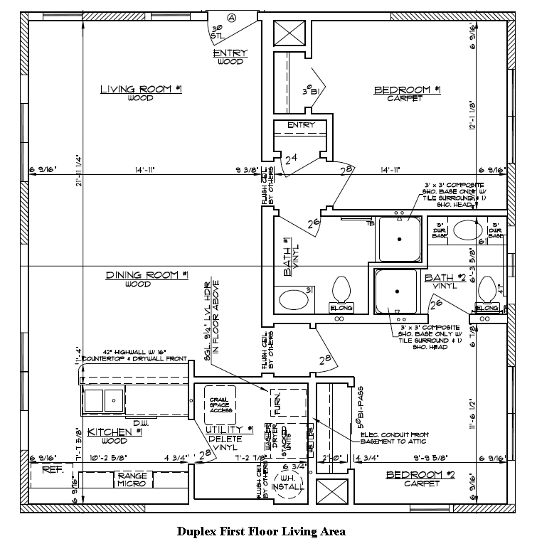
Square Feet: 2,100
Bedrooms: 4 Bedrooms
Bathrooms: 4 Bathrooms
Bedrooms: 4 Bedrooms
Bathrooms: 4 Bathrooms
Style: Multi-Family/Townhome, Two Story
Builder: Liscott
Builder: Liscott
















