Liscott Custom Homes, Ltd.

A faster, smarter way to build your home

  • Email
  • Facebook
  • LinkedIn
  • Twitter

Dream it • Build it • Liscott it

Liscott Custom Homes, Ltd. • Parker, Colorado • 877-LISCOTT
  • Home
  • About Liscott
    • Our Company
    • Our Team
  • Our Builders
    • Our Builders’ Standard Features
    • Champion/Atlantic Homes (Semi-Custom)
      • Champion/Atlantic Standard Features
        • York Built Series
        • Presidential Series
          • IRC Modular
          • Multi-Section
        • York Built Builder Series
        • Central Great Plains Series (IRC & HUD)
          • Modular
          • Single-Section
          • Multi-Section
        • Lifestyle/Presidential Series (IRC & HUD)-New 2017
          • IRC Modular
          • HUD
          • Single-Section HUD Code
      • Browse Champion/Atlantic Homes
      • Champion/Atlantic Customizable Options
    • Family Built Homes (Semi-Custom to Custom)
      • Family Built Standard Features
      • Browse Family Built Homes
    • Northstar Systembuilt Homes
  • Browse Floor Plans
    • All Floor Plans
    • Virtual Tours
  • Featured Homes
    • Showhome Center
    • Immediate Sale
    • Projects in Progress
    • Featured Style
    • Developer Projects
  • Blog
  • Contact Us
    • Help Center
    • Contact

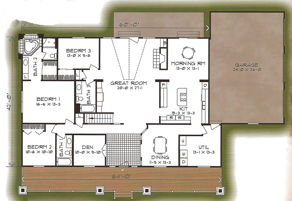
Hacienda A

Heritage Ranch

Home Details

Square Feet: 2,576
Bedrooms: 3 Bedrooms
Bathrooms: 3 Bathrooms
Style: Ranch
Builder: Other

Floor Plans

*DISCLAIMER: All the information on this website is published in good faith and for general information purposes only. We do not make any warranties about completeness, reliability and accuracy of this information. Any action you take upon the information on our website is strictly at your own risk. We are not liable for any losses in connection with the use of our website. The “prices starting at” cost is only the base cost of the home with estimated transport and set information to the Castle Rock, CO area. The “prices starting at” cost does not include options that may be shown in the illustration of the home, for site improvement work or land costs see the budget estimator. The estimated cost of the home is subject to change at any time. To get an accurate estimate for your new home at your specific location, please consult with a Liscott Custom Homes, Ltd. representative. These prices are meant as an estimate only. The prices are not final and do not constitute a quote, bid for work, or any other form of contract. For more information or to talk to a Liscott Custom Home, Ltd. representative click here.

Browse Floor Plans

You may select your desired options and leave any other fields blank

Search Homes by Style

  • Ranch
  • Two Story
  • Cape Cod
  • Loft/Cape Cod
  • Split Entry
  • Prow
  • Cabin
  • Solar
  • Multi-Family/Townhome
  • HUD
  • Tiny Home

Help Center & Planning Tools

What's an IRC Modular Home?   Budget Calculator   Guide to Building a New Home

Search Specific Home

Contact Us

Liscott Custom Homes, Ltd.
40900 Wind Spirit Lane
Parker, CO 80138
Local: 303-688-1724
Toll-free: 877-LISCOTT
[email protected]
  • Email
  • Facebook
  • LinkedIn
  • Twitter

Liscott Showhome Center

40900 Wind Spirit Lane, Parker, CO 80138
Local: 303-688-1724
Toll-free: 877-LISCOTT

Hours: Tuesday – Saturday, 10:00am – 5:00pm, Please call ahead

Build a Hotel the Modular Way!

  • 1 3 6.52
  • 2 20 11.21
  • 3 59 5.48 day 2
  • 4 69 2.52 day 2
  • 5 1-18 4.22 Day 3
  • 6 67 5.30
  • 7 93 3-11 7.00
  • 8 118 3-11 5.20
  • 9 121 3-11 6.00
  • 10 2 3-11 6.50
  • hotel_final

Contact Liscott Custom Homes at 303-688-1724 or [email protected] for more information on building hotels the modular way.

Copyright © 2026 Liscott Custom Homes, Ltd. · All Rights Reserved · Log in
Built by Elevate5