
Call for custom quote.
* MSRP pricing is for the base model and selected options only and does not include delivery, land, installation, sitework, foundation, connections to water, sewer, and gas, permitting, taxes, title fees, and site-built/installed items such as wells, septic tanks, drain fields, garages, porches, decks, grading, landscaping, concrete flat work and steps. Additional costs may also be incurred due to the need to achieve code compliance associated with energy efficiency, snow loads, and wind loads for your specific building location. All pricing and specifications are subject to change without notice. MSRP is valid for 14 days following your inquiry. Contact us for a complete price.
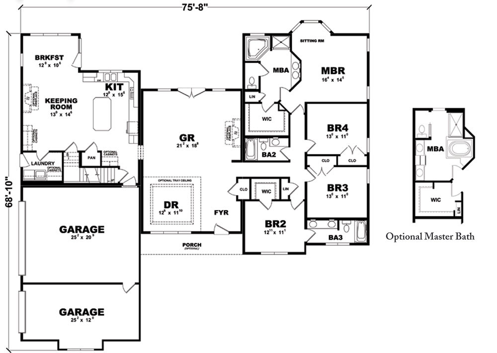
Home Details
Bedrooms: 3 Bedrooms
Bathrooms: 3 Bathrooms
Builder: Other











